项目地址:苏州吴江区太湖新城江城大道与南新路交叉口
导航搜索:中新智地(吴江)苏州湾智能制造产业园
开发商:中新智地
总占地:262亩
总建筑面积:31万㎡
土地性质:工业50年国土
户型面积:800㎡-6000㎡
交付时间:2024年4月30日,二期2026年6月
户型一:独栋(3#、4#、5#、6#、7#、8#、9#、10#)
层数:独栋4层 (独门独户)
单栋面积:1946㎡、2188㎡、2356㎡、3008㎡
层高:7.8m+4.5m+4.5m+4.5m
荷载:2T+0.8T+0.5T+0.5T
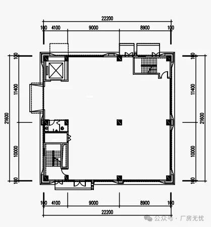
3#、9#(1946㎡):

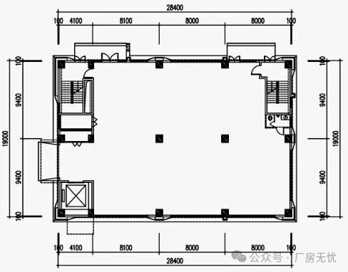
5#、7#(2188㎡):

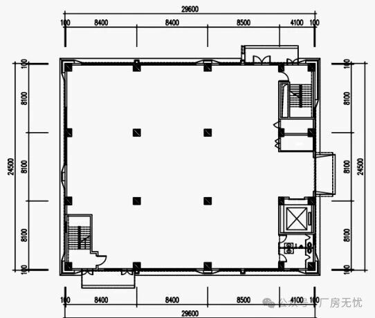
6#、8#(3008㎡):
户型二:
双拼(1#、2#、11#、12#、13#、14#、18#、19#)
层数:双拼 4层(一栋2户)
单户面积:2030--3084㎡层高:7.8m+4.5m+4.5m+4.5m
荷载:2T+0.8T+0.5T+0.5T
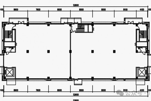
1#、2#(2475㎡+3084㎡):

11#、12#、13#、14#、18#、19#(2275㎡+2030㎡):
二期户型:
双拼加分层主力双拼(1698㎡+2490㎡):

主力双拼分层830㎡:

主力独栋分层1663㎡






